95.3 / 88.5 FM Grand Rapids and 95.3 FM Muskegon
Play Live Radio
Next Up:
0:00
0:00
0:00 0:00
Available On Air Stations

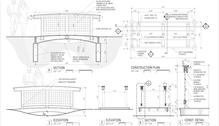
Holland nonprofit raising funds for "Rainbow Bridge" pet memorial

Pet123.org

A Holland area nonprofit is collecting donations for a proposed memorial that will honor pets that have passed away

“We have sufficient funds to start the project and we’re confident that we will have the balance of community support to continue the funding and to complete the project.”

Mike Mitchell is Executive Director for Holland Area Pet Memorial, a nonprofit created this year for building the Rainbow Bridge. He says after seeing similar pet memorials in other communities across the country, the organization obtained approval from Ottawa County and Park Township officials to build their own.

“Over 50% of the local township are pet owners, and we know that everybody who has a pet and has lost one deals with that, and to have a place where they can go and remember their pet, it’s something that I think everyone will benefit from.”

Pet123.org

The Rainbow Bridge will be just that, situated on a parcel at the end of 168th Street, south of Ottawa Beach Road, next to Holland State Park. Visitors will be able to attach pet tags and collars to the structure.

“This is a place where they can go and memorialize their family pet, so that they in turn can then make sure the kids and the family have a way of dealing with the tragedy of losing a pet.”

For more information or to donate, go to Pet123.org

For a weekly dose of news right to your inbox, sign up for the WGVU newsletter.

Dave joined WGVU Public Media in November of 2023 after eighteen years as a Michigan Association of Broadcasters Emmy-nominated photojournalist and editor at Grand Rapids' WOOD TV8 and three years at WEYI TV25 in Flint, Michigan. As a General Assignment Reporter, Dave covers daily news and community events all over West Michigan.
Related Content